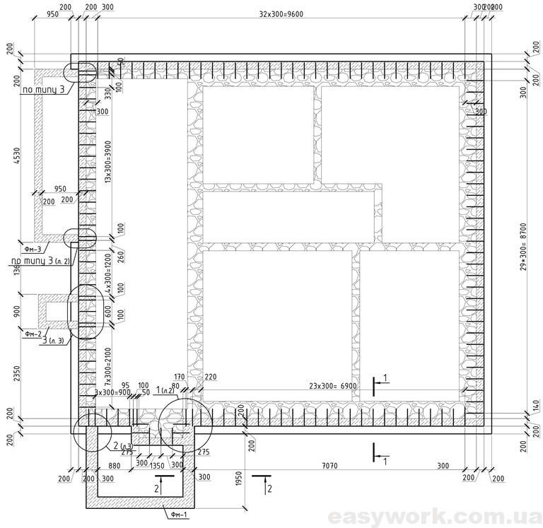
Схема усиления фундамента

analiz-obrazovaniya-treshhin-v-stenah-doma-chast-2-1